• Architecture • BIM • Engineering • Design Coordination • Architecture • BIM • Engineering • Design Coordination
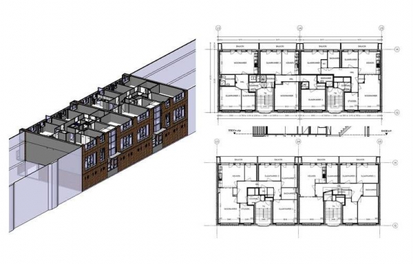
Project : Landlust, Amsterdam
Type : Housing Sustainable renovation
Status : Presented
Client : Van der Leij Bouwbedrijven B. V.
Architect : Archivolt architecten
Role : BIM, Coordiantion and 4D Planning
Area : 15,000 sq. mts.
Information :  
A showcase where BIM usage is a true contribution to the contractor.Making BIM,clash detection by integration of different consultants,Guiding the construction sequence like demolition,new construction along with safety measures of the occupants.
 
Powered by Phoca Gallery